Le bien

NANTES CARRÉ FEYDEAU - Référence #3494

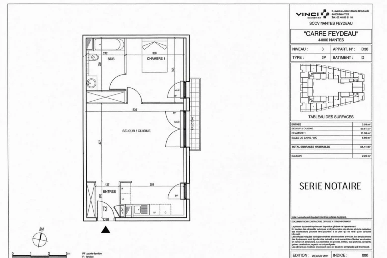
Rue Léon Maître - Dans une résidence de 2014, sécurisée, à proximité immédiate des commerces et transport en communs, appartement de type 2 de 51,41m² situé au 3ème étage avec ascenseur et comprenant : entrée avec placard, pièce de vie de 30,61m² avec cuisine aménagée et équipée (plaque de cuisson induction, hotte et four), donnant sur un balcon de 2,20m² exposé Est, une chambre de 11,36m², une salle de bains avec baignoire, meuble vasque et WC.

Une place de parking et une cave en sous-sol complètent ce bien.

Chauffage collectif.
Les charges comprennent : parties communes, ascenseur, eau froide, eau chaude et chauffage.

Disponible le 27/03/2026.

Les informations sur les risques auxquels ce bien est exposé sont disponibles sur le site Géorisques : www.georisques.gouv.fr

Caractéristiques du bien

Date de disponibilité 27/03/2026
Loyer 813€ /mois CC
Charges mensuelles* 78€
Honoraires TTC 674€
Dont état des lieux 155.77€
Dépôt de garantie735€
Surface habitable 51 m²
Pièces 2
Étage 3
Nbre de chambres 1
Chauffage Collectif
Stationnement Oui
* Montant des charges soumis à régularisation annuelle.

Performances énergétiques

B
80
kWh/m2
3
kgCO2/m2.an
Logement très performant
A
B
Consommation
(Énergie primaire)
80  kWh/m2
Émissions
3  kgCO2/m2.an
C
D
E
F
G
Logement extrêmement
consommateur d'énergie
Peu d’émissions de CO2
A
3  kgCO2/m2.an
B
C
D
E
F
G
Émissions de CO2
très importantes

Estimation des coûts annuels d’énergie

Les coûts sont estimés en fonction des caractéristiques du logement et pour une utilisation standard sur 5 usages (chauffage, eau chaude sanitaire, climatisation, auxiliaires)
Entre 270€ et 400€ par an.
Prix moyen des énergies calculées au 1er janvier 2026 (abonnements compris)
 
 
 
Bien situé à Nantes centre-ville
Ces biens pourraient vous plaire
Mes préférences cookies