Le bien

NANTES SAINT JOSEPH DE PORTERIE - Référence #3470

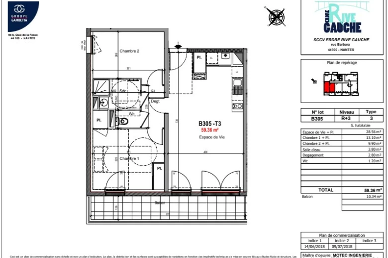
Dans une résidence récente, proche des commerces et transports en communs (bus ligne 75), appartement de type 3 de 59,36m² situé au 3ème étage avec ascenseur et comprenant : entrée avec placard sur pièce de vie de 28,56m² avec cuisine aménagée et équipée (plaque de cuisson vitrocéramique, hotte, four, réfrigérateur/congélateur et lave vaisselle), donnant sur un balcon de 10,34m² exposé Sud Ouest, dégagement, 2 chambres de 13,10m² et 9,90m² dont une avec placard, une salle d'eau avec douche et meuble vasque, WC séparés.

2 places de parking privatives en extérieur complètent ce bien.

Chauffage et eau chaude individuels gaz.
Les charges comprennent : parties communes, ascenseur et entretien de la chaudière.

Disponible le 14/03/2026

Bien soumis aux conditions de ressources liées à l'Assurance Loyers Impayés (ALI) et au dispositif PINEL.

Les informations sur les risques auxquels ce bien est exposé sont disponibles sur le site Géorisques : www.georisques.gouv.fr.

Caractéristiques du bien

Date de disponibilité 14/03/2026
Loyer 802€ /mois CC
Charges mensuelles* 70€
Honoraires TTC 732€
Dont état des lieux 179.86€
Dépôt de garantie732€
Surface habitable 59 m²
Pièces 3
Étage 3
Nbre de chambres 2
Chauffage Individuel
Stationnement Oui
* Montant des charges soumis à régularisation annuelle.

Performances énergétiques

C
74
kWh/m2
15
kgCO2/m2.an
Logement très performant
A
B
C
Consommation
(Énergie primaire)
74  kWh/m2
Émissions
15  kgCO2/m2.an
D
E
F
G
Logement extrêmement
consommateur d'énergie
Peu d’émissions de CO2
A
B
C
15  kgCO2/m2.an
D
E
F
G
Émissions de CO2
très importantes
Bien situé à Nantes
Ces biens pourraient vous plaire
Mes préférences cookies