Le bien

SAINT SEBASTIEN SUR LOIRE - Référence #1211

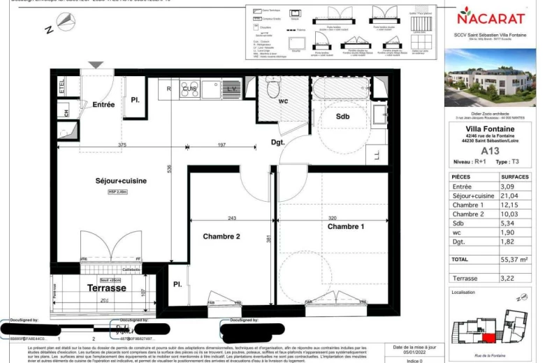
Un appartement récent de type 3 de 55.37 m² situé au 1er étage avec ascenseur. Comprenant entrée avec placard, séjour avec espace cuisine aménagé et équipé ( plaques de cuisson induction et hotte) et donnant sur une terrasse de 3.22 m², dégagement, 2 chambres dont 1 avec placard ( 12.15 m² et 10.03 m²), salle de bains et WC.
Un parking privé en sous sol.
Chauffage individuel gaz.

Charges inclus: entretien des parties communes et de l'ascenseur

Disponible le 16 janvier 2026.
Bien soumis à une ALI (assurance loyer impayé) et dispositif PINEL.

Les informations sur les risques auxquels ce bien est exposé sont disponibles sur le site Géorisques : www.georisques.gouv.fr

Caractéristiques du bien

Date de disponibilité 16/01/2026
Loyer 740€ /mois CC
Charges mensuelles* 50€
Honoraires TTC 690€
Dont état des lieux 167.77€
Dépôt de garantie690€
Surface habitable 55 m²
Pièces 3
Étage 1
Nbre de chambres 2
Chauffage Individuel
Stationnement Oui
* Montant des charges soumis à régularisation annuelle.

Performances énergétiques

C
66
kWh/m2
13
kgCO2/m2.an
Logement très performant
A
B
C
Consommation
(Énergie primaire)
66  kWh/m2
Émissions
13  kgCO2/m2.an
D
E
F
G
Logement extrêmement
consommateur d'énergie
Peu d’émissions de CO2
A
B
C
13  kgCO2/m2.an
D
E
F
G
Émissions de CO2
très importantes

Estimation des coûts annuels d’énergie

Les coûts sont estimés en fonction des caractéristiques du logement et pour une utilisation standard sur 5 usages (chauffage, eau chaude sanitaire, climatisation, auxiliaires)
Entre 419€ et 567€ par an.
Prix moyen des énergies calculées au 1er janvier 2026 (abonnements compris)
 
 
 
Bien situé à St Sébastien sur Loire
Ces biens pourraient vous plaire
Mes préférences cookies