Le bien

LA CHAPELLE SUR ERDRE - Référence #3043

LOGEMENT NON VISITABLE -- RÉSERVATION SUR PLAN ET PHOTOS

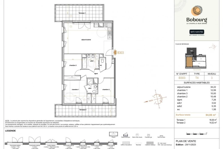
Dans une résidence neuve dans le centre de la Chapelle sur Erdre, appartement de type 4 de 84.88 m² situé au 3ème étage avec ascenseur et comprenant : entrée sur séjour avec cuisine aménagée et équipée (plaques de cuisson vitrocéramique et hotte) de 34.22 m², donnant sur terrasse orientée EST de 16.06 m², dégagement, 1 chambre de 10 m² avec placard, une seconde chambre de 12.99 m² avec placard et salle d'eau avec WC, donnant sur une seconde terrasse de 14.52 m², une 3ème chambre de 10.48 m² avec placard et donnant également sur la terrasse, salle de bains, WC séparés.

Deux places de parking en sous-sol complètent ce bien.

Chauffage gaz. Les charges comprennent : parties communes, ascenseur et entretien chaudière.

Disponible le 01/12/2025.

DPE non renseigné, logement non livré.

Bien soumis aux conditions de ressources liées à l'Assurance Loyers Impayés (ALI).

Les informations sur les risques auxquels ce bien est exposé sont disponibles sur le site Géorisques : www.georisques.gouv.fr

Caractéristiques du bien

Date de disponibilité 01/12/2025
Loyer 1 070€ /mois CC
Charges mensuelles* 90€
Honoraires TTC 980€
Dont état des lieux 254.64€
Dépôt de garantie980€
Surface habitable 84 m²
Pièces 4
Étage 3
Nbre de chambres 3
Chauffage Individuel
Stationnement Oui
* Montant des charges soumis à régularisation annuelle.

Performances énergétiques

B
60
kWh/m2
10
kgCO2/m2.an
Logement très performant
A
B
Consommation
(Énergie primaire)
60  kWh/m2
Émissions
10  kgCO2/m2.an
C
D
E
F
G
Logement extrêmement
consommateur d'énergie
Peu d’émissions de CO2
A
B
10  kgCO2/m2.an
C
D
E
F
G
Émissions de CO2
très importantes
Bien situé à La Chapelle Sur Erdre
Ces biens pourraient vous plaire
Mes préférences cookies